For Sale

$309,000

819 REGAL MANOR WAY, SUN CITY CENTER, FL 33573

2 Beds
2 Baths
1,515 Sq.Ft.
Est. payment from /mo Get Pre-Approved

Property Description

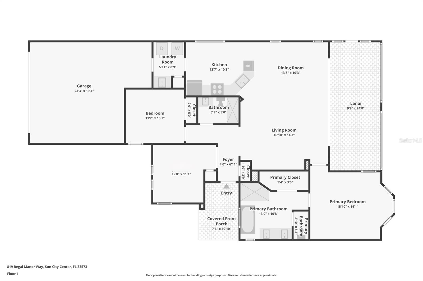
One or more photo(s) has been virtually staged. Experience Resort-Style Living on the Renaissance Golf Course! This meticulously maintained 2-bed, 2-bath home spanning 1,515 sq. ft. offers the perfect blend of elegance and peace of mind, featuring a new roof (2022) and a freshly painted interior. From the brick-paved driveway and lush, mature landscaping to the grand covered entrance, curb appeal abounds. Inside, the great room impresses with soaring tray ceilings and expansive sliders that frame breathtaking golf course views. The interior features easy-maintenance ceramic tile throughout, custom ceiling fans, and sun-drenched living spaces courtesy of strategic skylights. The kitchen is a chef's delight with sleek stone countertops, a convenient breakfast bar, and ample cabinetry. Retreat to the primary suite, featuring a cozy sitting area with corner windows overlooking the greens, a walk-in closet, and a spa-like en suite with a soaking tub and separate shower. Complete with a private home office and a massive screened lanai with brick pavers, this move-in-ready gem is Florida living at its finest! You'll love Sun City Center with its amazing facilities, pools, and clubs just waiting for you to enjoy. Nestled between Sarasota and Tampa, this location offers a convenient ride to airports, great shopping, dining, and professional entertainment. With easy access to award-winning, sandy beaches, this home provides the best of all worlds without the stress of big city life. Leave it all behind and enjoy your new life here in one of Florida's most affordable 55-and-better communities!
One or more photo(s) has been virtually staged. Experience Resort-Style Living on the Renaissance Golf Course! This meticulously maintained 2-bed, 2-bath home spanning 1,515 sq. ft. offers the perfect blend of elegance and peace of mind, featuring a new roof (2022) and a freshly painted interior. From the brick-paved driveway and lush, mature landscaping to the grand covered entrance, curb appeal abounds. Inside, the great room impresses with soaring tray ceilings and expansive sliders that frame breathtaking golf course views. The interior features easy-maintenance ceramic tile throughout, custom ceiling fans, and sun-drenched living spaces courtesy of strategic skylights. The kitchen is a chef's delight with sleek stone countertops, a convenient breakfast bar, and ample cabinetry. Ret...
Read More

Interior

Full Bathrooms
2 Full Baths
Laundry Room
Inside, Laundry Room
Flooring
Ceramic Tile
Appliances
Dishwasher, Microwave, Range, Refrigerator
Other Interior Features
Ceiling Fans(s), Eat-in Kitchen, High Ceilings, Kitchen/Family Room Combo, Living Room/Dining Room Combo, Open Floorplan, Solid Surface Counters, Solid Wood Cabinets, Walk-In Closet(s)

Area & Lot

Total Area
2,307 Sq.Ft.
Lot Size
6,000 Sq.Ft.
MLS® ID
TB8480425
Type
Residential
Year Built
2006
View Description
Golf Course

Exterior & Building

Stories
1
Garage Spaces
2.0
Water Source
Public
Utilites
Cable Available, Electricity Available
Roof
Shingle
Lot Features
City Limits, In County, Level
Parking
Driveway
Heat Type
Central
Air Conditioning
Central Air
Sewer
Public Sewer
Substructure
Slab
HOA Amenities
Fence Restrictions, Fitness Center, Golf Course, Handicap Modified, Recreation Facilities, Shuffleboard Court, Tennis Court(s), Vehicle Restrictions, Wheelchair Access
Other Exterior Features
Sidewalk, Sliding Doors

Finance

Reduced Price
Price Upon Request
Real Estate Taxes
$3,646/yr
HOA Fees
$258/mo
Zoning
PD-MU
819 REGAL MANOR WAY
image

Schedule a Tour

We would love to show you our beautiful property. Please select your preferred date and time below. An agent will be in touch shortly to confirm your appointment.

Schedule a Tour

We would love to show you our beautiful property. Please select your preferred date and time below. An agent will be in touch shortly to confirm your appointment.

Thank you for your interest in 819 REGAL MANOR WAY, SUN CITY CENTER, FL 33573. We are reviewing your request and will be in touch shortly!
name

Work With Us

link

Mortgage Calculator

Estimate your mortgage payment, including the principal and interest, taxes, insurance, HOA, and PMI. Add your location for more accurate estimates.
$0,000 Your Payment 20 15 65 65
$0,000 Your Payment

Work With Us

With The Flo Vachon Team, you not only get an exceptional level of service, but the honest, straightforward answers you need to make sound investment decisions for your future.